Midlands Co-Op

Project: Warwick Plaza, Warwick Client: Mid Counties Co-Operative

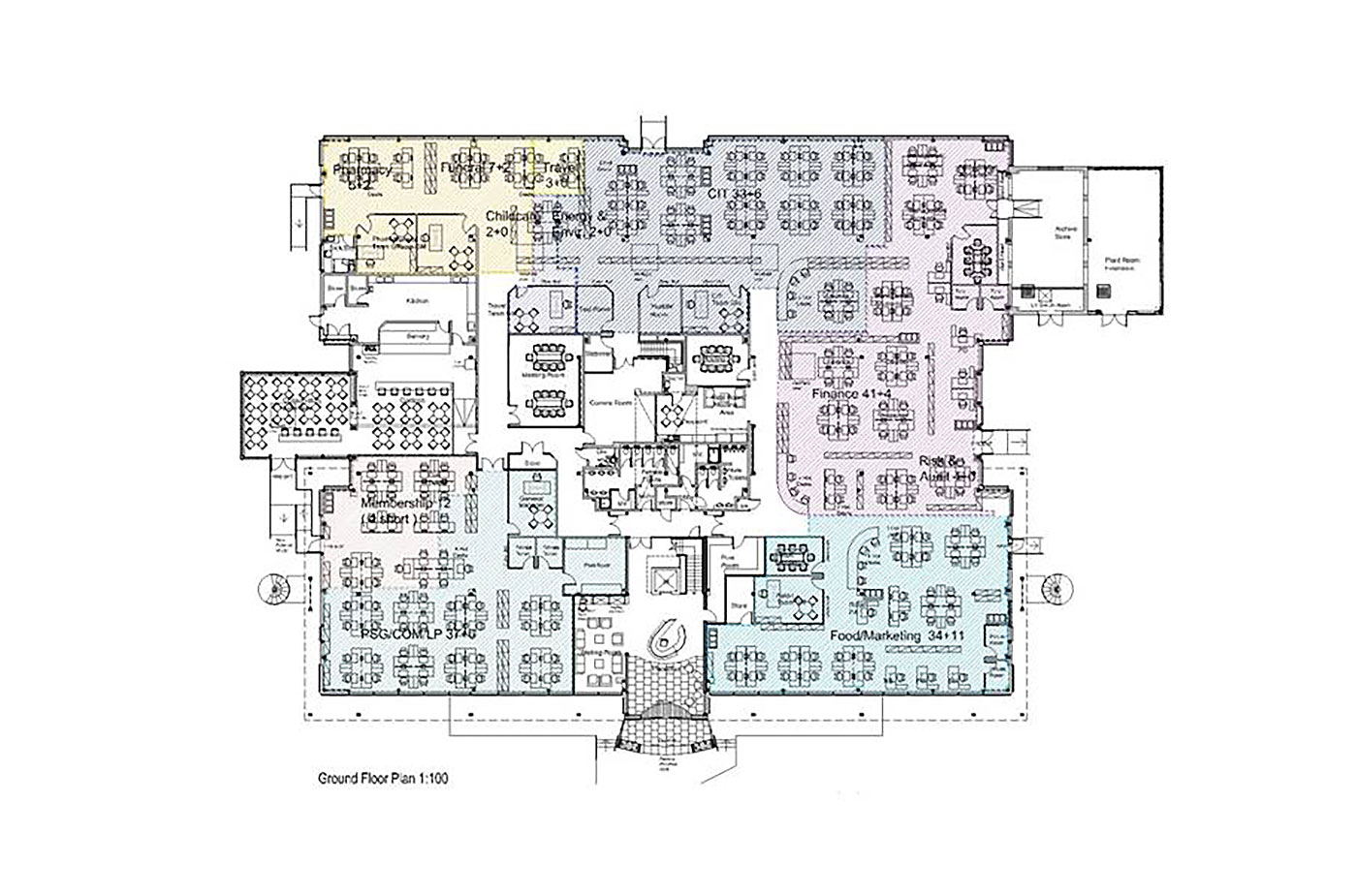
Project Information: New regional headquarters offices for Mid-Counties Co-Operative (Co-Op). Commission included the review of the base build construction, creation of new reception, space planning for office fit-out, furniture selection including furniture design of reception fittings, and overseeing of fit out.

The project allowed for the creation of a central office facility for the Midlands region, bringing together all of the previous satellite offices for greater efficiency in the workplace.

Gallery

Other things to see

Previous project

Guernsey Postal Headquarters

Commercial
Back to our portfolio

Portfolio

Pages